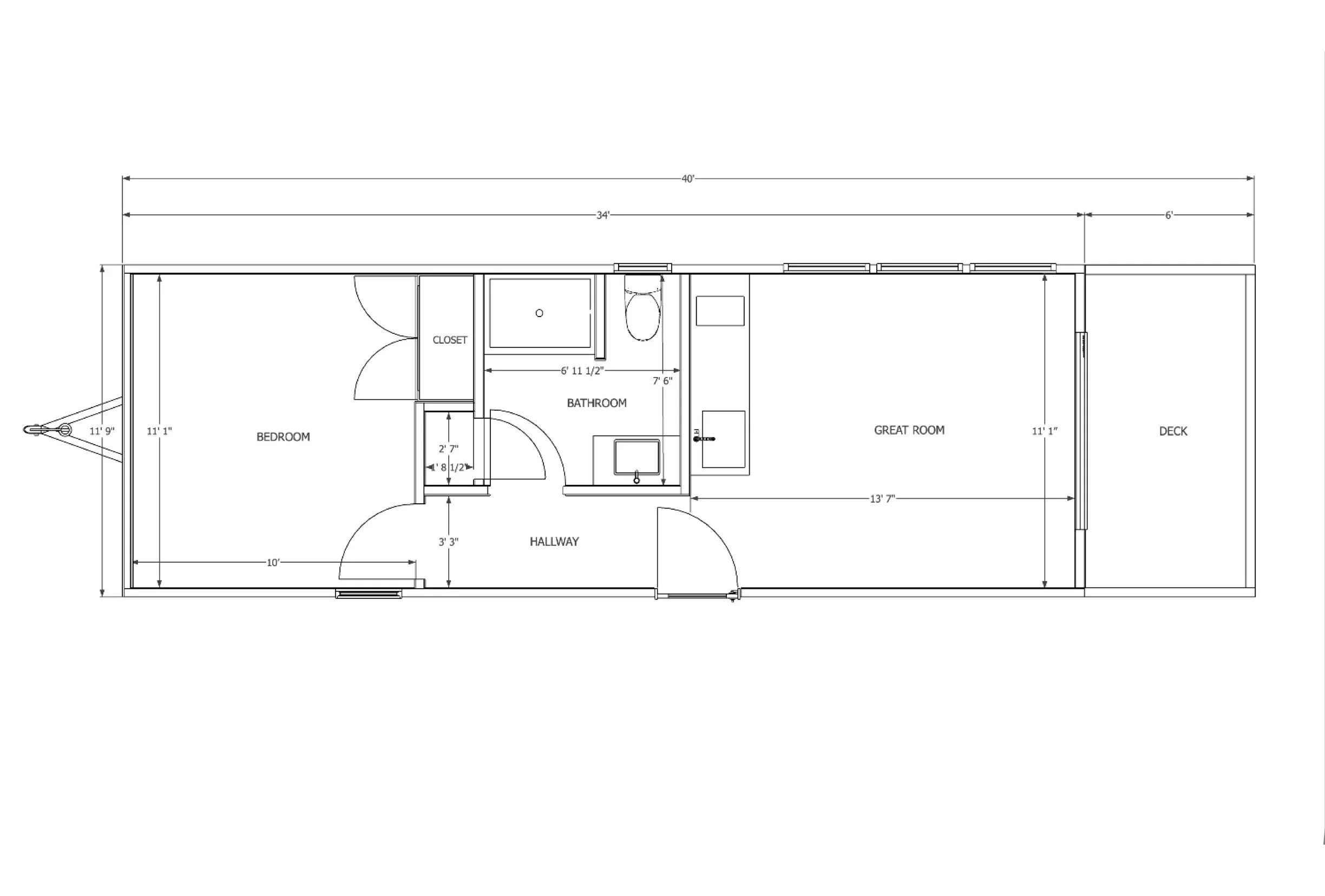
CABIN

  • 400 square feet for bridal suite and/or honeymoon suite (included in weekend wedding package) or a stand alone rental for weekend getaway. Sleeps 4

  • Peaceful surroundings overlooking the ponds - steps away from venue but fully private with deck, fire pit and hammock

  • Climate controlled for year round comfort

  • Five hair/makeup stations

  • Perfect backdrop for photos and pre-ceremony memories